Description
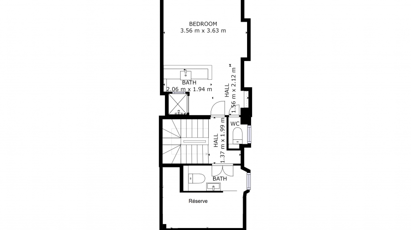
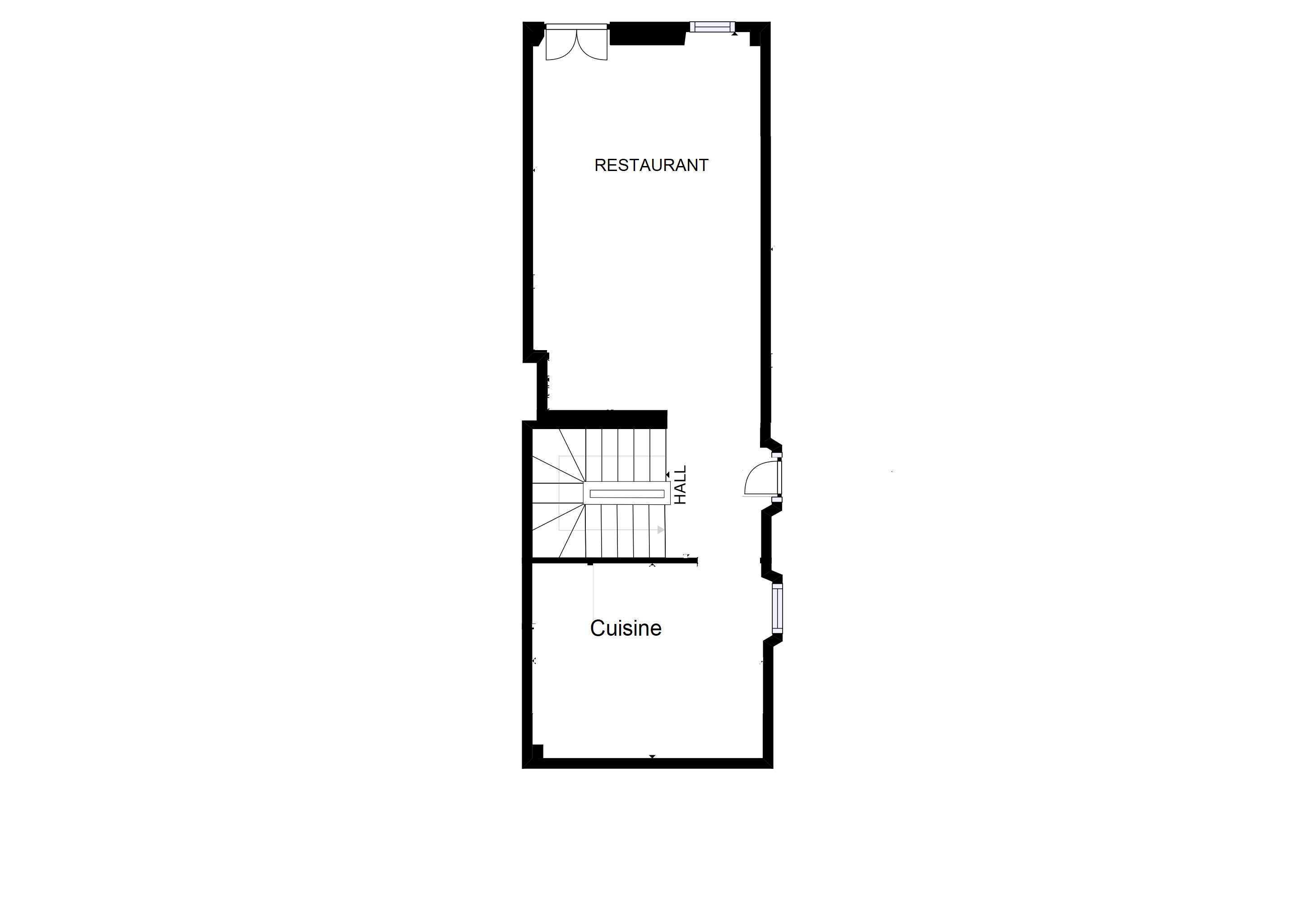
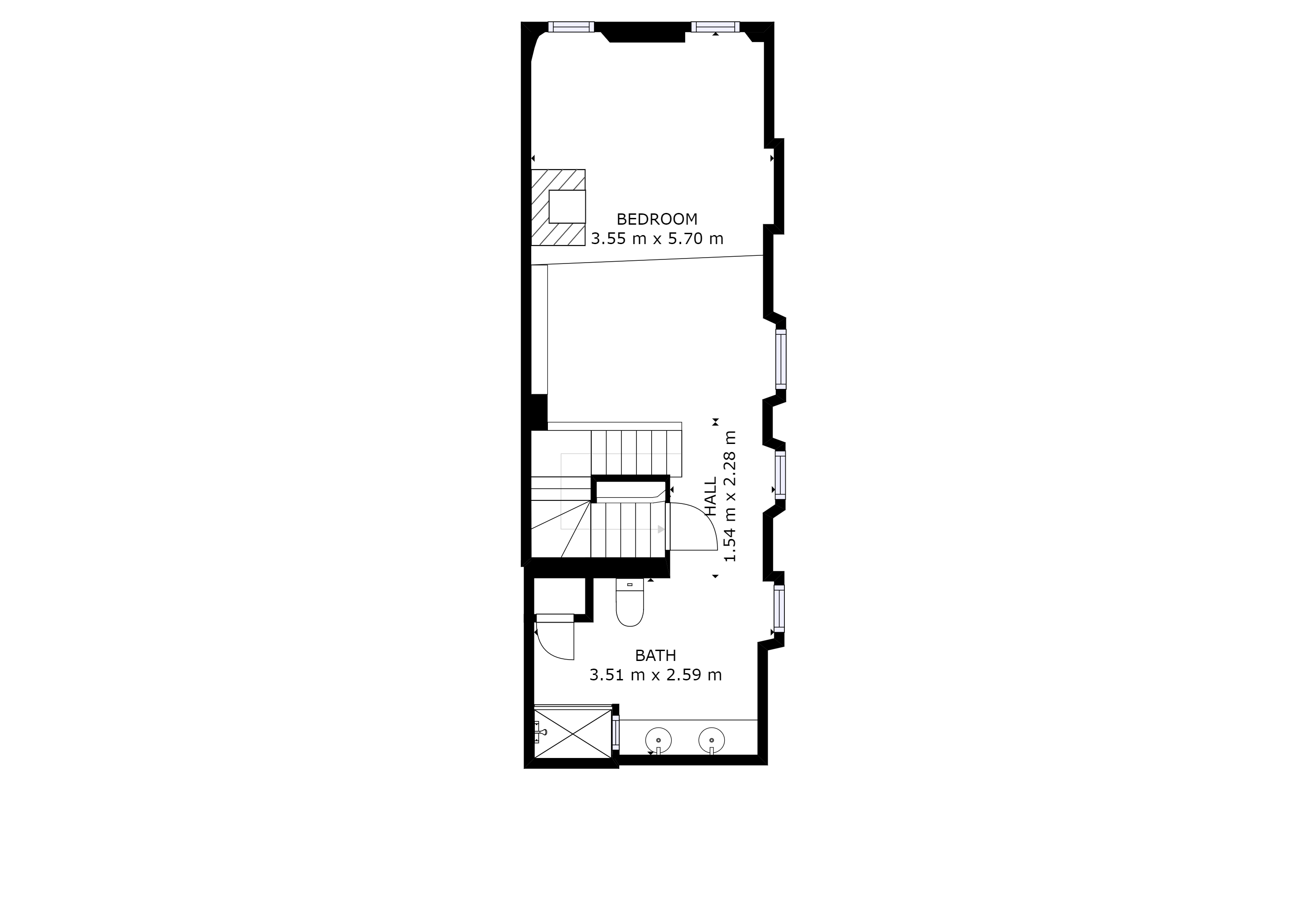
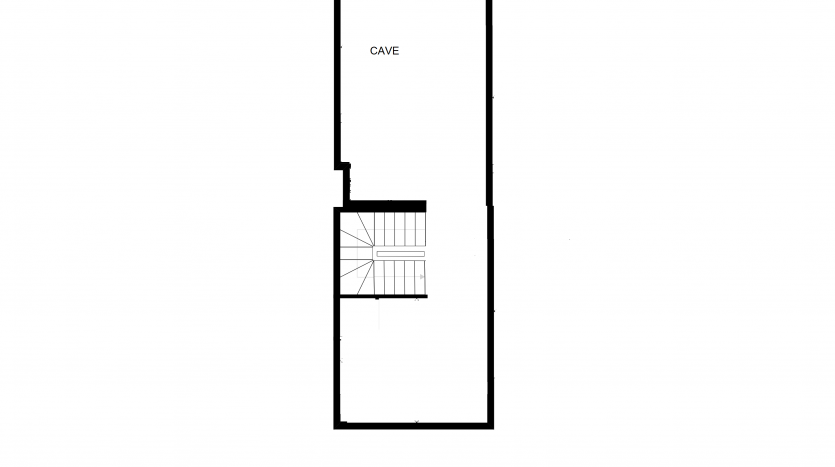
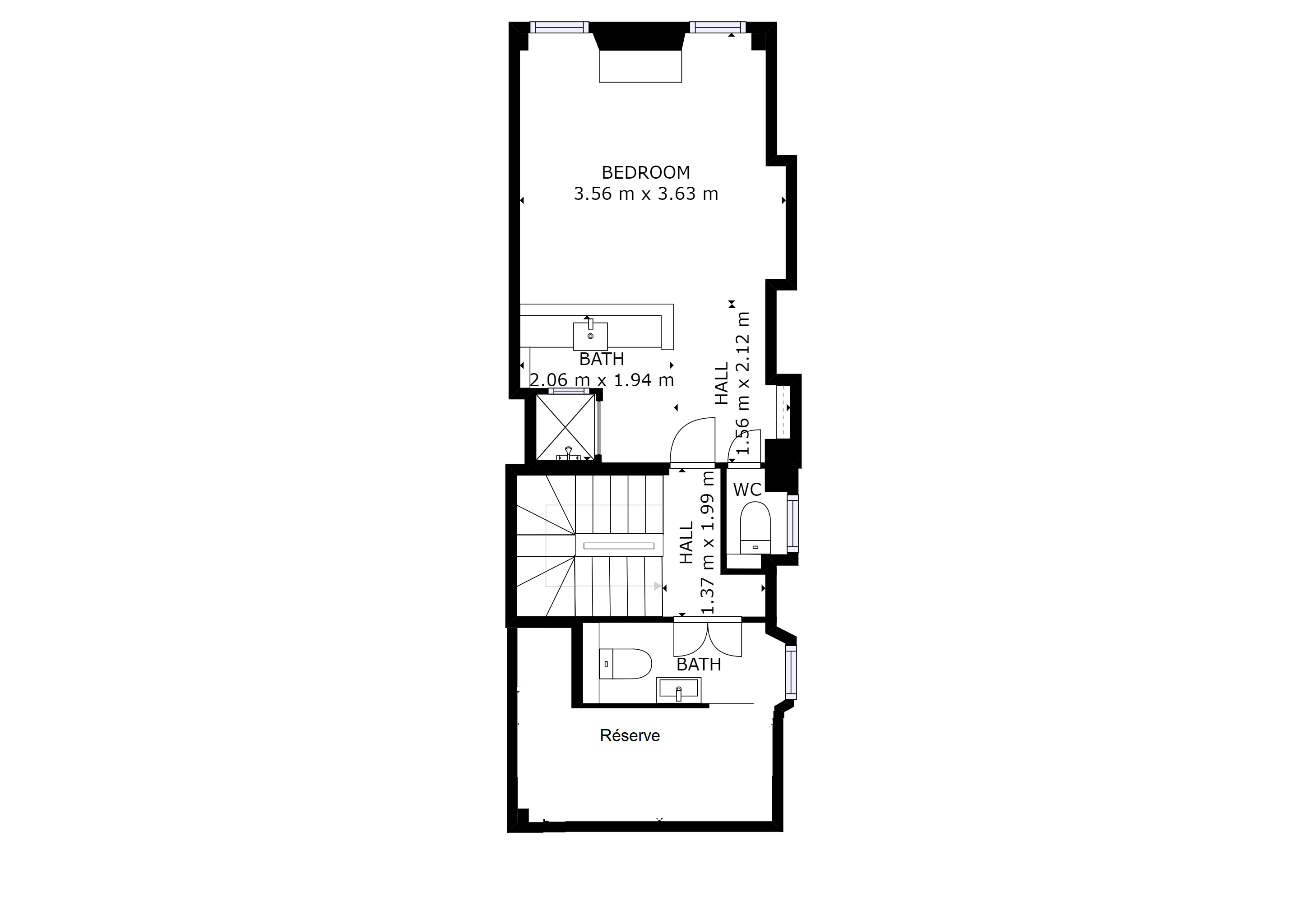
VENCE dans la cité historique, le Cabinet GRIMAZ vous propose l’acquisition d’un bel immeuble ancien de 152 m2 de 4 étages situé sur une charmante place avec un bar-restaurant équipé et fermé au rez de chaussée avec une belle cave – 4 studios de 30 m2 environ dont un à chaque étage entièrment équipés et loués en RB
B (Recettes: 30.000 € annuel)- Taxe foncière: 1.250 € annuel – Excellent état ! Possibilité de récupérer 50.000 € sur la vente du fonds de commerce de bar-restaurant à moins de le transformer en studio.
Réf. web: 1225426
Prix : 690.000 € FAI
Mandat numéro: 10354





